化肥氨合成塔顶盖螺栓预紧客户选用科威KWZK液压螺栓拉伸器
2022-12-08 科威
SafeGear 中压开关柜知识介绍(一)
液压扳手泵上压慢且达不到最大压力故障原因与维修
2022-12-07 科威
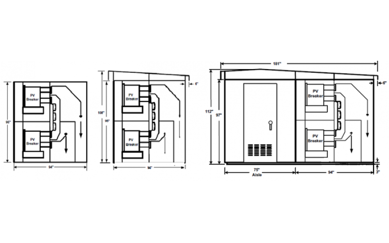
开关柜靠墙安装知识介绍
差压变送器差压值不准确显示偏低故障处理
电厂循环流化床锅炉炉膛温度计的使用浅析
2022-12-06 科威
URF-8N系列超声波物位计与LTZ-300系列雷达物位计的原理及特点
开关柜试验/计算/设计导则知识分享